Projet de maison neuve sur terrain à Kertzfeld – 3,47 ares

  • 312.000€
Kertzfeld
SUR LE MARCHE Vente

Projet de maison neuve sur terrain à Kertzfeld – 3,47 ares

Kertzfeld
  • 312.000€

Aperçu

ID de l'annonce: VM945-MYAGENCE
  • Maison
  • Type d'annonce
  • 3
  • Chambres
  • 1 + 0
  • Salles de bains
  • Stationnement interne : 1
  • Garages
  • 95.00

Description

Situé à Kertzfeld, dans un environnement calme et résidentiel, découvrez ce projet de construction sur un terrain de 3,47 ares, idéal pour une résidence principale moderne et fonctionnelle.

Terrain : 3,47 ares
Maison individuelle de 95 m² habitables
Projet projette de manière optimisée
Environnement agréable et peu passant

Descriptif du projet

Ce projet propose une maison contemporaine avec chauffage au sol, pensée pour offrir confort, luminosité et fonctionnalité au quotidien.

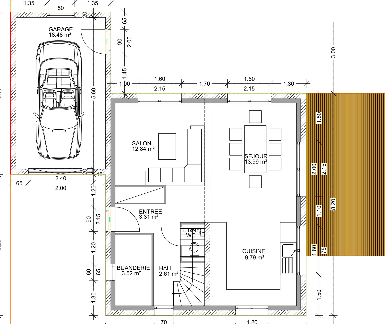
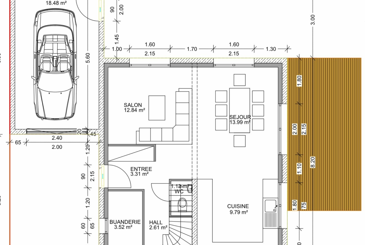
Au rez-de-chaussée :
Entrée
Espace de vie lumineux comprenant salon / séjour / cuisine ouverte
WC indépendants
Buanderie
Garage attenant
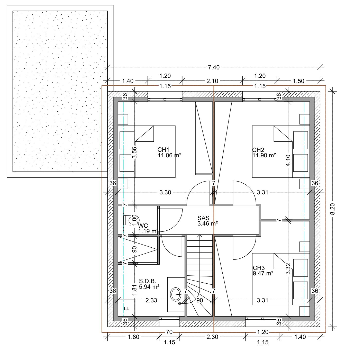
À l’étage :
3 chambres confortables
Salle de bain familiale
toilettes

Prestations:
Pompe à chaleur air/eau
Chauffage au sol au rez-de-chaussée
Carrelage au sol au rez-de-chaussée
Sols stratifiés à l’étage
Construction conforme aux normes énergétiques en vigueur

Ce projet est idéal pour une famille souhaitant s’installer dans un cadre de vie agréable, tout en restant proche des commodités et des axes principaux.

Kertzfeld séduit par son cadre de vie, son esprit village et sa situation géographique recherchée.

Contactez-nous pour plus d’informations, découvrez les possibilités d’aménagement ou étudiez votre projet personnalisé.

DPE vierge. Les informations sur les risques auxquels ce bien est exposé sont disponibles sur le site Géorisques : georisques.gouv.fr.

  • Ville Kertzfeld
  • Zip / code postal 67230

Détails

Mis à jour le février 27, 2026 à 12:59 pm
  • ID de l'annonce: VM945-MYAGENCE
  • Prix: 312.000€
  • Taille de la propriété: 95.00 m²
  • Chambres: 3
  • Pièces: 4
  • Salles de bains: 1 + 0
  • Garages: Stationnement interne : 1
  • Type d'annonce: Maison
  • Statut de l'annonce: SUR LE MARCHE, Vente

Coordonnées

Voir les annonces
admin
  • admin

Renseignez-vous sur cette propriété

Compare listings

Comparer
Chercher
Échelle des prix De à
admin
  • admin