Souffelweyersheim – Entrepôt de 3 000m² dont 545m² de bureaux

  • 5.500.000€
Souffelweyersheim
SUR LE MARCHE Vente

Souffelweyersheim – Entrepôt de 3 000m² dont 545m² de bureaux

Souffelweyersheim
  • 5.500.000€

Aperçu

ID de l'annonce: 1228-MYAGENCE
  • Immobilier Pro
  • Type d'annonce
  • +
  • Salle de bains
  • 2994

Description

À LOUER / À VENDRE – Entrepôt d’exception avec visibilité unique – Souffelweyersheim (Strasbourg)

En façade directe de l’autoroute A4 – 100 mètres d’emplacement linéaire sur l’axe le plus fréquent de Strasbourg.
Surface totale : 2 994 m² couverts + auvent.

Situé à Souffelweyersheim, au cœur de l’Eurométropole de Strasbourg, cet entrepôt rare sur le marché offre une visibilité remarquable et un stratégique stratégique pour toute entreprise souhaitant renforcer son image et optimiser sa logistique. Sa façade de près de 100 mètres donnant directement sur l’autoroute A4 permet une exposition exceptionnelle.

DESCRIPTION DÉTAILLÉE :

Vaste hall fonctionnel offre des conditions d’exploitation optimales :
Hauteur sous ferme d’environ 6 mètres, adaptée au stockage, à la préparation logistique ou à la production légère.
14 portes sectionnelles permettant une grande souplesse de circulation :9 portes de quai standard (3 x 3,5 m), dont 2 avec accès de plain-pied.
4 portes de quai grand gabarit (5 x 4,5 m), dont 1 avec accès de plain-pied.
Une petite porte pour VL.

Une luminosité exceptionnelle grâce à une dizaine de skydomes et une faîtière en polycarbonate translucide sur toute la longueur du bâtiment.
Chauffage radiant au gaz assurant un confort thermique dans l’ensemble du hall.
Portes piétonnes et issues de secours assurant la sécurité et la conformité du site.
L’ensemble crée un espace lumineux, organisé et immédiatement opérationnel pour toutes activités d’entreposage, de distribution ou d’industrie légère.

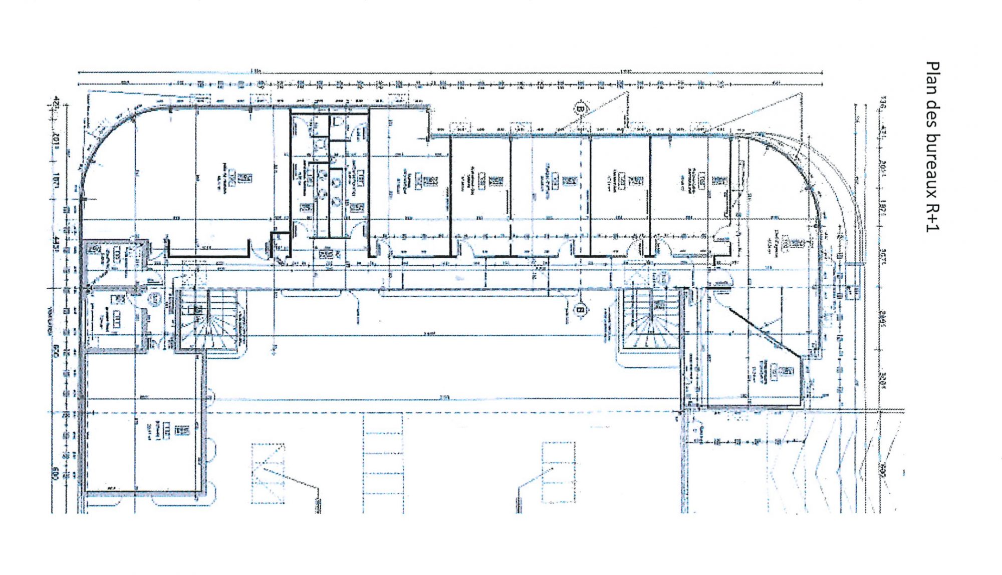
Bureaux – 545 m² sur deux niveaux.
Les bureaux, situés en façade, offrent un cadre de travail moderne et bien agencé :
Plateaux lumineux avec vue directe sur le hall d’activité et sur l’extérieur.
Espaces aménagés comprenant bureaux cloisonnés, salles de réunion, locaux sociaux et zones d’archives.
Baie de brassage informatique installée pour accompagner les besoins techniques.
Sanitaires au rez-de-chaussée et à l’étage.
Climatisation réversible, assurant un confort optimal en toute saison.

Ces bureaux sont conçus pour accueillir une équipe administrative, un service commercial ou des fonctions support dans des conditions professionnelles de qualité.

EXTÉRIEURS & ENVIRONNEMENT :
Le site dispose :
D’une cour goudronnée, facilitant les manœuvres et la circulation des véhicules utilitaires et poids lourds.
De nombreux stationnements VL, installés sur pavés engazonnés, en façade du bâtiment.
D’espaces verts qui valorisent la présentation générale du site.

Son positionnement géographique permet un accès très rapide à l’autoroute A4 et aux principaux axes de l’agglomération strasbourgeoise, un atout majeur pour les entreprises ayant des besoins de distribution régionale, nationale ou transfrontalière.

Prix de vente : 5,5€ M€ HT + TVA.
Contact : Yves MANGOLD – 06 10 05 35 42

Honoraires inclus de 3.77% HT à la charge de l’acquéreur. Prix hors honoraires 5 300 000 € HT. Non soumis au DPE. Les informations sur les risques auxquels ce bien est exposé sont disponibles sur le site Géorisques : georisques.gouv.fr.

Votre conseiller MYAGENCE : Gérant – Yves MANGOLD
Carte T CPI67012023000000029
RCP MMA IARD – 148561510

  • Ville Souffelweyersheim
  • Zip / code postal 67460

Détails

Mis à jour le février 26, 2026 à 4:01 pm
  • ID de l'annonce: 1228-MYAGENCE
  • Prix: 5.500.000€
  • Taille de la propriété: 2994 m²
  • Pièce: 0
  • Salle de bains: +
  • Type d'annonce: Immobilier Pro
  • Statut de l'annonce: SUR LE MARCHE, Vente

Coordonnées

Voir les annonces
admin
  • admin

Renseignez-vous sur cette propriété

Compare listings

Comparer
Chercher
Échelle des prix De à
admin
  • admin